Free account required
5
Free account required
$924,990 Sale
Listed 4 days ago
62 Mountainside Crescent
· 4
· 3
· 2
· 2000-2500
Listing History
Buy/Sell/Terminated/Expired listing history for 62 Mountainside Crescent
Key Facts
Key facts for 62 Mountainside Crescent
Property Type
Townhome, 2-Storey
Parking
Attached 1 garage, 2 parking
MLS #
E12481965
Size
2000-2500 sqft
Basement
Partially Finished
Listed on
2025-10-23
Lot size
20 x 113.19
Tax
-
Days on Market
7
Approximate Age
-
Maintenance Fee
-
Description
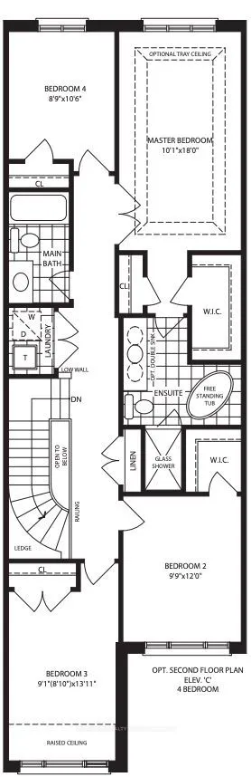
Discover The Thames at 62 Mountainside Crescent, Whitby-a sophisticated terrace townhome offering 2,580 sq. ft. of stylish living plus 559 sq. ft. of finished basement space. This open-concept design welcomes you with bright, spacious interiors, a modern kitchen with generous island, and a cozy fire...place that anchors the great room-a perfect setting for family life and entertaining. Upstairs, enjoy four spacious bedrooms, including a serene primary suite with a luxurious ensuite and walk-in closet. The finished basement extends your lifestyle with space for a media room, office, or gym.Located in one of Whitby's most desirable communities near parks, schools, and amenities, The Thames combines thoughtful craftsmanship, elegant comfort, and everyday convenience. Modern living meets timeless design-your next chapter begins here.
Similar Properties (No results)
Courtesy of: GLENVIEW REALTY CORP.